Menu
Un projet réalisé par :Antoine Contamin  Architecte à Pantin

Habitat groupé de 6 logements

 Pantin - 93
Antoine Contamin
Accueil Projets Habitat groupé de 6 logements

Ce projet est une esquisse d'habitat collectif participatif (non abouti, le bâtiment ayant été vendu à un autre acheteur) en réhabilitation d'un ancien bâtiment d'activité artisanale, pour un groupe de 6 foyers.

Habitat groupé de 6 logements

Le projet part d’une analyse des potentiels (structure en poteaux-poutres bois, par essence flexible) et contraintes (bâtiment en fond de parcelle, implanté sur trois limites séparatives) de l’existant pour déterminer les interventions minimales sur l’enveloppe. Les objectifs étant :
- de maximiser la surface habitable afin de dégager l’espace nécessaire pour les 6 appartements ;
- de recréer un ensemble cohérent entre les deux corps bâti existants ;
- d’apporter de la lumière à tous les appartements et de générer des espaces de rencontre et de vie collective (cour arrière dégagée et seconde courette créée, toiture partiellement transformée en toiture terrasse).

Les plans des appartements sont ensuite conçus dans un jeu de plateaux en demi-niveaux suivant la trame porteuse, afin de faire bénéficier à tous les appartements de multiples orientations et une variété de hauteurs de sols et plafonds (créer de la richesse spatiale).
Les espaces communs extérieurs (cour pavée, cour en fond de parcelle, toiture terrasse) sont complétés par un grand sous-sol de 125m² que nous avons choisi, en accord avec les futurs habitants, de conserver brut.

  • Habitat groupé de 6 logements : 2

    Schéma état existant

  • Habitat groupé de 6 logements : 3

    Modifications des enveloppes :
    - ouverture du patio dans l'angle nord-ouest et percement d'un nouveau patio dans l'angle nord-est;
    - modification de la toiture du petit bâtiment pour créer un niveau supplémentaire donnant sur une toiture terrasse neuve créée sur le grand bâtiment

  • Habitat groupé de 6 logements : 4

    Reconfiguration des planchers intérieurs en demi-niveaux décalés

  • Habitat groupé de 6 logements : 5

    Greffe d'une liaison entre les 2 bâtiments et cage d'escalier et coursives extérieures

  • Habitat groupé de 6 logements : 6

    Répartition des 6 appartements

  • Habitat groupé de 6 logements : 7

    Façade arrière avec patio créé

  • Habitat groupé de 6 logements : 8

    Coupes successives avec imbrications des appartements

  • Habitat groupé de 6 logements : 9

    Coupes successives avec imbrications des appartements

  • Habitat groupé de 6 logements : 10

    plan du rdc

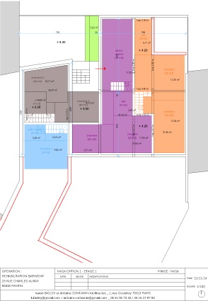
  • Habitat groupé de 6 logements : 11

    plan du 1er étage bis

Trouvez un architecte pour votre projet

Protection de vos données personnelles

Depuis toujours, architectes-france.com ne transfère aucune donnée personnelle à d'autres acteurs que ceux directement concernés par le projet (architectes, architectes d'intérieur...) et qui appartiennent à son réseau. Nos listes ne sont jamais transmises ou vendues à des partenaires extérieurs, même si ceux-ci appartiennent au domaine de la construction.
Toute modification dans ce domaine ne serait effectuée qu'avec votre consentement.

Je consens à ce que mes données personnelles soient collectées pour permettre à architectes-france de transférer votre projet aux architectes. Seul Architectes-france, ses équipes internes et la maitrise d'oeuvre concernée par le projet y ont accès. Aucune transmission de données à des tiers à l'exclusion de ceux décrits ci dessus n'est réalisée.

Mes données téléphoniques seront uniquement utilisées par Architectes-france.com et les architectes de notre réseau dans le cadre de la qualification et du suivi de mon projet.

Les données sont conservées pendant une durée de 18 mois courant à partir des derniers contacts effectifs entre architectes-france et vous ou architectes-france et un membre de la maitrise d'oeuvre en rapport avec ce projet et qui serait en relation avec architectes-france.

Conformément à la loi « informatique et libertés », vous pouvez exercer votre droit d'accès aux données vous concernant et les faire rectifier en contactant : Architectes-france, 23 avenue du Mirail - parc du Mirail - 33370 Artigues-près Bordeaux. Tél. 05.47.74.51.01 - contact@architectes-france.com

Trouvez un architecte pour votre projet

Protection de vos données personnelles

Depuis toujours, architectes-france.com ne transfère aucune donnée personnelle à d'autres acteurs que ceux directement concernés par le projet (architectes, architectes d'intérieur...) et qui appartiennent à son réseau. Nos listes ne sont jamais transmises ou vendues à des partenaires extérieurs, même si ceux-ci appartiennent au domaine de la construction.
Toute modification dans ce domaine ne serait effectuée qu'avec votre consentement.

Je consens à ce que mes données personnelles soient collectées pour permettre à architectes-france de transférer votre projet aux architectes. Seul Architectes-france, ses équipes internes et la maitrise d'oeuvre concernée par le projet y ont accès. Aucune transmission de données à des tiers à l'exclusion de ceux décrits ci dessus n'est réalisée.

Mes données téléphoniques seront uniquement utilisées par Architectes-france.com et les architectes de notre réseau dans le cadre de la qualification et du suivi de mon projet.

Les données sont conservées pendant une durée de 18 mois courant à partir des derniers contacts effectifs entre architectes-france et vous ou architectes-france et un membre de la maitrise d'oeuvre en rapport avec ce projet et qui serait en relation avec architectes-france.

Conformément à la loi « informatique et libertés », vous pouvez exercer votre droit d'accès aux données vous concernant et les faire rectifier en contactant : Architectes-france, 23 avenue du Mirail - parc du Mirail - 33370 Artigues-près Bordeaux. Tél. 05.47.74.51.01 - contact@architectes-france.com