
Réhabilitation/extension d'une maison abandonnée
Réhabilitation et extension d'une maison en pierres en Savoie.
Rehausse de la toiture et extension pour porter la surface habitable à 115 m2 (60 m2 avant travaux), et rénovation énergétique (niveau BBC Rénovation avec Cep de 80 kWh/m2.an après travaux).
Les objectifs du maître d'ouvrage étaient les suivants :
- Une large augmentation de la surface habitable (maison de type T4 souhaitée par l'ANAH, qui finance une partie des travaux) ;
- Une amélioration énergétique majeure (niveau label Effinergie) ;
- Une accessibilité aux PMR (logement destiné à la location).
La restructuration porte sur :
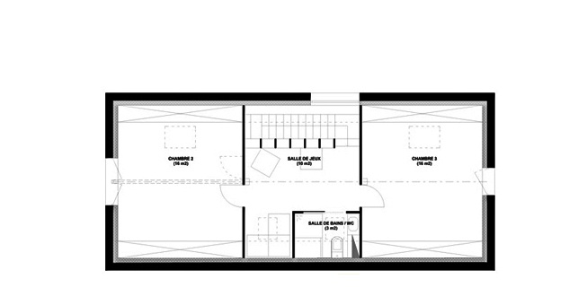
- la rehausse de la toiture de façon à rendre les combles habitables (deux grandes chambres de 16 m2, divisibles au besoin pour accueillir deux enfants, avec un palier central servant de salle de jeux avec lit d'appoint);
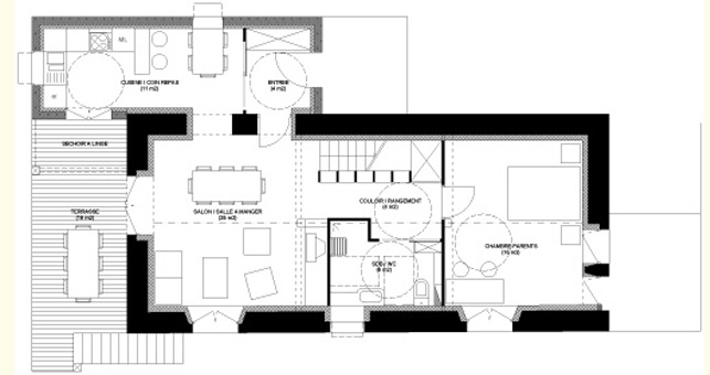
- la construction d'une extension de 15 m2 en béton cellulaire qui accueille la cuisine et se prolonge par une terrasse, qui permet de reconfigurer entièrement la distribution de la maison (création d'un sas d'entrée donnant sur la cuisine et le séjour).
L'amélioration énergétique (consommation de 80 kWh/m2.an (étiquette B contre F avant travaux) est obtenue par :
- l'isolation de la toiture (30 cm de laine de verre) et des murs (15 cm de laine de verre) par l'intérieur ;
- la pose de fenêtres en bois à double vitrage performant;
- l'installation d'une pompe à chaleur qui alimente un plancher chauffant au rez-de-chaussée (et conduit de cheminée existant conservé pour ajout éventuel d'un poele à bois) et d'un chauffe-eau thermodynamique pour l'eau chaude sanitaire.
-
-
combles avant/après
-
-
Restauration des façades à l'enduit à la chaux
-
Pompe à chaleur et chauffe-eau thermodynamique dans la cave
-
Plan du rez-de-chaussée
-
Plan des combles
rez-de-chaussée avant/après